Definiciones
La fuerza de sujeción en un torno –industrial, de metales– sería la fuerza con la que el plato sujeta la pieza que va a ser mecanizada, y cuyo valor prácticamente nunca se tiene en cuenta –al menos entre los operadores de estas máquinas y sus jefes en el mercado chileno– a la hora de planificar la ejecución de algún trabajo; ajustándose éste, en el mejor de los casos, a la «experiencia» del tornero o, en el peor, al máximo apriete posible. Situación que tiene lugar, en primera instancia, debido a que el cálculo de dicha fuerza rara vez aparece en la bibliografía de quienes se encargan de impartir la teoría de estas máquinas –que es genérica y orientada a tornos convencionales, más que a modelos específicos–, y en segunda, porque básicamente nadie considera necesario determinar su valor para optimizar la fabricación de piezas en cuanto a calidad y/o costos directos y fijos.
A decir verdad, muy pocas veces una empresa que se dedica a fabricar piezas utilizando máquinas herramientas se da a la tarea de hacer los cálculos necesarios para planificar de la mejor manera posible la ejecución de los trabajos de mecanizado. Las que más «planifican» en este sentido, con suerte hacen cálculos para definir las revoluciones por minuto, velocidades de avance y/o profundidades de corte más adecuadas para ciertos diámetros de piezas a fabricar; determinando otros factores de importancia como las plaquitas, el aceite lubricante y el refrigerante necesarios a partir de la asesoría de los proveedores de tales insumos.

Ahora, a pesar de que esta variable suela ser por completo ignorada –o peor aún, ni siquiera conocida– su determinación, si bien no tan relevante como la de la velocidad angular, velocidad de avance y otras, sí que puede contribuir a mejorar procesos de fabricación, en especial cuando lo que se va a mecanizar son piezas especialmente grandes y pesadas, y que, por su aplicación, exigen una tolerancia dimensional mínima. Por supuesto que esto no es lo que ocurre en la mayoría de los casos en los que, por tal motivo, sería francamente innecesario definir la fuerza de sujeción. Por otro lado, ningún sentido tiene hacer este cálculo si después el operador no tiene la forma de ajustar el apriete hasta el valor obtenido, o si el mecanismo para ello resulta tedioso; situación que tendría en lugar en los platos manuales. De aquí que lo más razonable sea hacerlo cuando el plato del torno es neumático o, más todavía, hidráulico, dado que este último tipo permite alcanzar fuerzas de sujeción más elevadas, para el mecanizado piezas más pesadas. Condiciones que, según mi experiencia, tienen lugar en los tornos de control numérico (CNC), no así en los manuales. Con un sistema neumático o hidráulico de sujeción el operador, para lograr la fuerza de sujeción óptima, solo tendría que variar la presión en el sistema.
Un caso real
Expongamos a continuación un caso que da cuenta de los beneficios que, en determinadas aplicaciones, el cálculo de la fuerza de sujeción puede traer al proceso de fabricación. Cierta empresa, a la que le hago el servicio técnico de varias de su máquinas herramientas, dedicada a la fabricación de piezas para distintas máquinas usadas en la minería, obtuvo un día un contrato millonario por la ejecución relativamente masiva de un tipo de eje mucho más grande, pesado y dimensionalmente complejo que los que había hecho antes.
Siendo una gran empresa, de ésas sumamente estructuradas en todo sentido bajo estándares y regulaciones nacionales e internacionales y que cuenta con amplios recursos, el departamento de producción llevó a cabo un análisis para la fabricación del nuevo eje, en el que se estudió si debían hacerse cambios al torno CNC más grande de su taller –uno de 8 metros de largo de una de las mejores marcas a nivel mundial–, para lograr una mayor eficiencia en la creación de la pieza en cuestión. Esto es: reducir el retrabajo –como el rectificado de algunas piezas por no alcanzar éstas la tolerancia dimensional demandada– y las horas hombre utilizadas para ajustar la sujeción, al tiempo que se incrementa en lo posible las velocidades de avance.
Tras el análisis, que incluyó algunas pruebas, se llegó a la conclusión de que el plato neumático del torno, con el que éste llegó originalmente, debía ser cambiado por uno hidráulico, puesto que de esa manera se podría llegar de forma sencilla a la tolerancia de +-0.01 mm, máxima permisible del torno; a la que, para el eje en cuestión, no era posible llegar con el plato neumático a menos que el operario realizara algunas maniobras en las garras. Véase que el eje necesitaba, para su aplicación, una tolerancia de +-0.004 mm, por lo que después del torno, que no está diseñado para dar tolerancias menores a +-0.01 mm, el primero debía pasar sí o sí a una rectificadora cilíndrica.

En lugar de hacer los cálculos para definir cuál plato hidráulico sería el más idóneo para la aplicación, se siguió la recomendación del fabricante de platos para los tornos de la marca antes referida –que no es el mismo fabricante del torno como tal–, y se compró entonces un cilindro hidráulico con capacidad máxima de 32 bares y un plato con presión admisible de casi 24 bares; cosa que, en principio parecería una incoherencia ¿Por qué no recomendar también un plato que pueda soportar 32 bares? o, en su defecto, suponiendo que con esto se exceda la carga admisible de los rodamientos del husillo, ¿Por qué no recomendar un cilindro que llegue solo hasta 24 bares, que, obviamente, sería más barato?. Dejando de lado el hecho anterior, que sería tema de otro análisis, lo cierto es que ahora la compañía encargada de fabricar el pesado eje de precisión tenía un cilindro hidráulico de 32 bares y un plato hidráulico de 23.5 bares para llevar a cabo su tarea.
Luego de que mi empresa hiciera la instalación, llegó el momento de comenzar con el proceso de fabricación; durante el cual el departamento de producción se topó con que, mientras más alta fuera la presión del sistema –dentro de cierto rango, claramente–, había más probabilidad de llegar a la tolerancia de 0.01 mm con velocidades de avance y profundidades de corte más elevadas. Debido a esto, y dado el desconocimiento y la inexperiencia técnica del planificador de producción, se tomó la decisión de elevar la presión del sistema hasta el máximo: 32 bares. Además del subalterno técnico del jefe de adquisiciones, nadie se había enterado de que el plato solo soportaba 23.5 bares de presión; todos asumían que, lógicamente, si el cilindro podía trabajar con 32 bares, el plato también debía poder hacerlo; y, lo que es peor, ninguno se preguntó jamás por el significado del número 23.5 que estaba inscrito en la cara frontal del plato. Luego de un corto tiempo de trabajo ¡sorpresa!, el sistema de sujeción se rompió y ya no apretaba más –claro, no soportaba 32 bares de presión–, lo que prendió las alarmas en el departamento de producción de la compañía.

La rotura del sistema de sujeción del plato significó casi 1 mes y medio de no producción –mientras se desmontaba el sistema, se cambiaban las piezas necesarias para arreglar la falla y se volvía a armar todo de nuevo–, que a su vez se tradujo en reducción de ganancias y costos improductivos, pues los operarios y sus jefes debían seguir percibiendo su sueldo incluso aunque no tuvieran nada que hacer. Una situación tan escandalosa que provocó la intervención incluso del gerente general; generó nerviosismo en todos los integrantes del departamento de producción involucrados de alguna manera en el asunto; e hizo que se hiciera un nuevo estudio de lo que había sucedido y de la fabricación del eje. La conclusión rápida: se necesitaba un plato que soportara al menos 32 bares para lograr una mayor eficiencia en el proceso de producción; luego ¿Por qué demonios el fabricante no había recomendado ese plato?
Desconozco la respuesta a la última pregunta, solo sé que al final decidieron no comprar un plato para 32 bares –lo que habría significado la pérdida del dinero gastado en el plato de 24 bares, un nuevo aumento en los costos debido a la necesidad de instalación, y otra semana de producción perdida–, y trabajar con una presión de 24 bares, a costa de incrementar tanto el tiempo de fabricación –al tener que reducir los avances– como la dificultad de llegar a la tolerancia de +-0.01 mm.
Unos cuantos millones de pesos que bien pudieron ahorrarse –sin contar ésos que deben gastar de más debido a los tiempos más prolongados de producción–, si hubieran determinado en su análisis inicial la fuerza de sujeción necesaria para el eje que iban a producir. Esta pregunta, por supuesto, surgió luego de la rotura de los sellos «¿Cuál es la presión hidráulica que necesitamos para trabajar de la mejor manera posible esta pieza?», y véase el poco conocimiento del cálculo de la fuerza de sujeción, que ni siquiera el proveedor de los platos, estadounidense, pudo responderla. Yo, mediante un par de cortos y obvios razonamientos, traduje dicha pregunta a la fuerza de sujeción necesaria; claro que no pude determinarla en su momento por falta de tiempo y porque, a decir verdad, no hay ninguna ganancia en ello, más allá tal vez de un cierto prestigio intelectual. De aquí la idea de este ensayo, que llevaré a cabo porque ahora cuento con el tiempo necesario, y más por un desafío a mi capacidad de análisis que por cualquier otra cosa.
Análisis de la fuerza de sujeción
A partir de lo antes expuesto, sabemos que una fuerza de sujeción menor a la necesaria implica un mayor costo de producción debido a la prolongación del tiempo de mecanizado y al aumento de los retrabajos fuera del torno para que la pieza pueda cumplir con las tolerancias demandadas. A esto podemos agregarle la posibilidad de que la pieza se suelte del plato y ponga en riesgo, en primer lugar, la seguridad del operador y la del trabajo en sí mismo, al dilatar el proceso o generar algún daño en la máquina que requiera una intervención técnica y, por tanto, le impida funcionar de forma adecuada. Este último escenario tendría lugar si, por alguna razón –tal vez la de acelerar la producción a causa de retrasos imprevistos–, la fuerza centrífuga debido a la rotación excede a la fuerza de sujeción debido a un excesivo aumento de la velocidad angular. Por otro lado, una fuerza de sujeción más grande de la requerida, si bien va a permitir un trabajo seguro y óptimo, constituirá un gasto innecesario –en dispositivos que, por tener mayor capacidad, son más costosos– y la reducción del área de mecanizado; lo que a su vez contempla un mayor gasto, en el mejor de los casos, por la necesidad de comprar piezas más largas.

Para tener una visión más técnica de la fuerza de sujeción, podemos empezar diciendo que su función es que el plato absorba las fuerzas y momentos generados por la operación de mecanizado. Dicha fuerza vendría a ser, de esta manera, la suma aritmética de las fuerzas radiales que las mordazas ejercen sobre la pieza de trabajo. Asimismo, al hablar de la fuerza de sujeción debemos mencionar, en primer lugar, la fuerza de sujeción inicial F_sp0, que es la que tiene lugar cuando el torno está detenido; es decir, la que el operario puede controlar a través de la regulación de la presión en platos neumáticos o hidráulicos. Luego, durante la rotación, las masas del plato y de la pieza producen una fuerza centrífuga adicional, que reducirá o aumentará la fuerza de sujeción inicial F_sp0, dependiendo de si el agarre de las mordazas es exterior o interior. Claramente la determinación de la fuerza de sujeción requerida para cierto trabajo va a implicar el conocimiento de la variación de la fuerza de sujeción inicial debido la acción de la fuerza centrífuga, que deriva a su vez del aumento de la velocidad angular. La fuerza de sujeción efectiva durante el mecanizado es entonces la suma de la fuerza de sujeción inicial F_sp0 y la fuerza centrífuga total F_c.

La fuerza centrífuga F_c será negativa si el agarre es desde afuera hacia adentro (exterior), y positiva si es de adentro hacia afuera (interior).

Ahora, antes de determinar la fuerza de sujeción inicial, debemos definir primero la fuerza de sujeción requerida con el plato estacionario, que depende del tipo de trabajo a ejecutar. La herramienta de torneado genera tres fuerzas distintas: La fuerza de corte principal F_s; la fuerza de avance F_v; y la fuerza pasiva (estática) F_p. Durante el mecanizado, la fuerza de avance y la fuerza pasiva son absorbidas por las caras de las mordazas en contacto con la pieza de trabajo. La fuerza de corte principal, por su lado, da lugar a un momento (F_s x d_z / 2) que debe ser absorbido por el plato. El momento producido por la fuerza de corte principal durante el giro es lo que determina la fuerza de agarre requerida con el plato estacionario F_spz.

No suele ser necesario incluir en esta fórmula las fuerzas de avance y pasiva. En casos extremos, donde sus efectos deban considerarse, se incluyen dentro del factor de seguridad S_z.

La fuerza de corte principal, por su lado, se obtiene del producto del avance en mm/rev, la profundidad de corte en mm, y la fuerza específica de corte en kN/mm˄2.

El producto de s y t es el área de corte transversal (o sección transversal de la viruta), y se determina a partir de la siguiente tabla:

La determinación del avance nos permite obtener la fuerza de corte específica, a partir de la siguiente tabla:

La relación entre el diámetro de mecanizado y el diámetro de agarre (de la pieza en el tramo donde es sostenida por el plato), se entiende como la relación de sujeción (d_z / d_sp), y puede determinarse según las condiciones del trabajo, u obtenerse de la tabla 3:

Por su lado, el coeficiente de sujeción μsp, que da cuenta de la fricción entre la superficie de las mordazas y la pieza de trabajo en la zona de contacto, está influenciado por: el patrón de las superficies de agarre de las mordazas; la calidad de la superficie de la pieza de trabajo; y el material de ésta en sí mismo. Su valor se puede obtener de la tabla 4:

El factor de seguridad, finalmente, depende del grado de precisión con el que los parámetros involucrados, como la carga, coeficiente de sujeción, etc., pueden ser determinados y del grado de seguridad requerida. En general, siempre que sea posible debería ser mayor o igual a 2. Su valor aproximado se obtiene de la tabla 5:

Se pueden utilizar factores de seguridad más bajos si la pieza está apoyada en la contrapunta, en una luneta, o asentada axialmente contra las mordazas. La variable I_z, por su lado, se refiere a la distancia entre el punto de mecanizado y el punto de sujeción.
En este cálculo se ignoran las superposiciones de fuerzas alternas debido a que su influencia es muy pequeña en comparación con la fuerza de agarre total requerida. Los factores de seguridad, por su lado, serán aplicables siempre y cuando el plato se encuentre en buen estado, sin daños, adecuadamente lubricado y con el mantenimiento ejecutado al pie de la letra por el manual del proveedor. Este análisis tampoco toma en consideración el peso de la pieza de trabajo (se presume que éste se encuentra dentro del rango que pueden soportar los rodamientos del husillo), ni las fuerzas y momentos producidos por piezas asimétricas.
Estaremos operando con la fuerza de sujeción adecuada cuando el valor de la fuerza de sujeción requerida con el plato estacionario sea igual al valor de la fuerza de sujeción efectiva, expuesta en la ecuación 1. Esto se logra a través de la fuerza de sujeción inicial mencionada antes, que tiene en cuenta la acción de la fuerza centrífuga.

Básicamente, lo que debería suceder es lo siguiente: el operador comenzará su trabajo de mecanizado luego de haber ajustado el plato hidráulico de forma tal que la fuerza de sujeción sea igual a la fuerza de sujeción inicial. Cuando el plato empiece a girar, la fuerza centrífuga aumentará o disminuirá esta fuerza de sujeción inicial (dependiendo de si el agarre de las mordazas es exterior o interior), hasta que se convierta en la fuerza de sujeción efectiva, que deberá ser igual a la fuerza de sujeción requerida con el plato estacionario.

De acuerdo con el manual de operaciones del plato modelo ROTA NCE, de la compañía alemana SCHUNK –que a su vez sigue la recomendación de la asociación de ingenieros alemanes, VDI por sus siglas en alemán–, el factor de seguridad S_sp para la fuerza de agarre inicial es mayor o igual a 1.5. La fuerza centrífuga total, por su parte, depende tanto de la suma de las masas de todas las mordazas como del radio del centro de gravedad y las rpm.

El cálculo de la fuerza centrífuga variará cuando las mordazas sean extremadamente pesadas o de diseños especiales, casos que no vale la pena abordar en este momento debido a que en el mercado chileno rara vez se observan este tipo de mordazas. Por otra parte, los fabricantes de platos suelen contar con diagramas de velocidad en relación con fuerzas de agarre, con los que también se puede determinar la fuerza centrífuga –o, si se quiere, la pérdida de fuerza de sujeción– por lo general en mordazas duras y escalonadas.
Los operadores y planificadores de trabajos de mecanizado en tornos suelen tener dudas acerca de la influencia de las dimensiones, el peso y el tipo de material de la pieza a fabricar sobre la fuerza de sujeción. Hay que decir que estos factores están incluidos dentro del factor de seguridad S_z y la fuerza específica de corte.
Determinación de la presión hidráulica
Ya definida la fuerza de sujeción inicial que necesitamos para la fabricación de una pieza específica, es hora, primero, de hacer la selección adecuada del plato y el cilindro hidráulicos más idóneos, y segundo, una vez que tengamos los mencionados accesorios instalados, de ajustar la presión del sistema de forma tal que nos permita obtener la referida fuerza de sujeción. Vale decir que esta fuerza de sujeción no es la fuerza que el pistón del cilindro ejerce sobre el plato. En general esta última es menor que la primera, debido a que el sistema de transmisión interna del plato la incrementa. Ahora, no es necesario recurrir a análisis físicos para determinar la relación entre la fuerza del pistón del cilindro, que llamaremos: fuerza de entrada, y la fuerza de sujeción en las mordazas, puesto que ésta suele estar expuesta en las fichas técnicas de los fabricantes de platos hidráulicos –lo que, de hecho, nos ahorra tener que desarmar para hacer medidas del sistema de transmisión–.
Cada plato hidráulico entonces tiene un valor de fuerza de entrada máxima admisible y uno de fuerza de sujeción máxima. El plato adecuado para nuestro trabajo será, como es obvio, aquel cuyo valor de fuerza de sujeción máxima sea igual o inmediatamente superior al que necesitamos. Luego, habiendo seleccionado el plato hidráulico y establecido su fuerza de entrada máxima admisible, podemos obtener la fuerza de entrada requerida para nuestra fuerza de sujeción:

Con la fuerza de entrada definida, lo siguiente es seleccionar un cilindro hidráulico capaz de entregarnos ésta. Los fabricantes de cilindros hidráulicos –nuevamente, para que el operario no tenga que desarmar el cilindro para obtener medidas– exponen en las fichas técnicas de éstos la máxima fuerza que el pistón es capaz de entregar tanto en empuje como en tracción, y la máxima presión de trabajo que el cilindro puede soportar. Con estos valores la relación entre fuerza de entrada –que es la fuerza del pistón del cilindro– y presión ya queda establecida. A continuación, la presión que vamos a dar a nuestro sistema para obtener la fuerza de sujeción que deseamos:

A partir de las ecuaciones 6, 7 y 8, podemos aún hacer una simplificación más y establecer solo una fórmula para llegar a la presión que necesitamos para nuestra fuerza de sujeción:

Relación entre la fuerza de sujeción y la velocidad angular
Tal como queda expuesto en el apartado anterior, la fuerza de sujeción también queda determinada por la velocidad a la que la pieza va a girar. Por su parte, esta última nos ayuda a definir una buena cantidad de las otras variables comunes que se tienen en cuenta en el mecanizado con tornos y, lo que es más importante, a determinar el tiempo de trabajo. Dicho de otra manera, mientras más alta sea la velocidad angular, habrá una mayor tasa de producción y más alta eficiencia; claro que no se trata simplemente de plantear el valor más alto posible para las rpm, puesto que ello implicaría la necesidad de una fuerza de sujeción que, a su vez, solo podría ser transmitida por un plato cuya masa hará que la carga admisible del rodamiento del husillo sea sobrepasada o que, en el mejor de los casos, constituya un costo total más alto que el que se tendría al trabajar con una velocidad angular un tanto más baja.
Por otro lado, la velocidad angular también se ve limitada por la velocidad de corte admisible de la herramienta de corte, según dicta su fabricante en la hoja técnica de ésta. La velocidad de corte recomendada por el fabricante para sus herramientas –distinta de la máxima admisible– suele ser, a decir verdad, la variable que operarios y planificadores de producción toman como independiente, para determinar todas las demás que reconocen que intervendrán en el proceso de mecanizado –de aquí la importancia de seleccionar la herramienta de corte más adecuada para nuestro trabajo–. De modo que, para ahorrarnos cálculos que podrían ser francamente innecesarios, podemos decir que la fuerza de sujeción queda determinada por la velocidad angular y, en consecuencia, por la calidad y la idoneidad de la herramienta de corte seleccionada.

Dicho todo lo anterior, un tercer punto a tener en consideración antes de la selección del plato hidráulico capaz de darnos la fuerza de sujeción adecuada para nuestro trabajo, será la velocidad angular admisible de éste. Es decir, con el valor de las rpm calculado a partir de la velocidad de corte recomendada para nuestra herramienta de corte, debemos calcular la fuerza de sujeción correcta y, más tarde, seleccionar un plato hidráulico que no solo pueda brindarnos dicha fuerza, sino que además pueda girar a las revoluciones previamente establecidas. Todo bajo el supuesto de que el planificador de producción tiene en cuenta también que no debe superar la carga admisible del husillo.
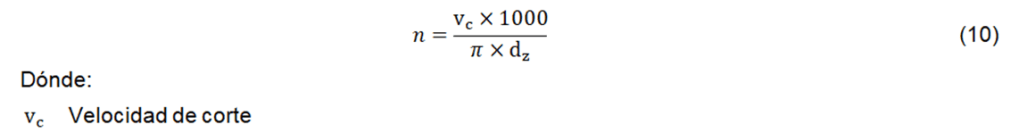
Las revoluciones por minuto a las que debe girar un husillo quedarán determinadas entonces por la siguiente ecuación:

Véase, finalmente, que la velocidad angular es inversamente proporcional al diámetro de mecanizado d_z. Luego, considerando que en los trabajos en un torno CNC es normal que dicho diámetro de mecanizado sea variable, y que la programación en estas máquinas suele hacerse para velocidad de corte constante, lo que genera que las rpm sean las que varíen a lo largo del proceso, siguiendo la ecuación 10, lo mejor siempre será hacer el cálculo de las rpm –lo mismo para el cálculo de la fuerza de sujeción necesaria y para la selección del plato hidráulico– utilizando el menor diámetro de mecanizado de la pieza sobre la que vamos a trabajar.
El caso de MOSI
Selección del plato adecuado
MOSI es el nombre de la empresa a la que hice referencia en el primer apartado de este artículo, aquella que, por montar en uno de sus tornos CNC un plato hidráulico sin previo análisis de la fuerza de sujeción requerida para el trabajo a efectuar, nos sirve de ejemplo para llevar a la práctica todo lo expuesto en las líneas anteriores. A la luz de las ecuaciones antes dadas, evaluaremos si el plato adquirido por esta compañía fue el más adecuado para su trabajo.
Para empezar, la herramienta de corte que el departamento de producción utiliza en el torno en cuestión es una CNMG190608 de la marca ISCAR. Por supuesto que se utilizan otras plaquitas para las distintas operaciones a efectuar –roscado, desbaste interior, tronzado y afinado–; solo que, de acuerdo con la pieza a fabricar, y como sucede en la mayoría de los casos, el desbaste exterior es la operación a la que más se le destina tiempo y que mayor influjo genera en el agarre de las mordazas sobre la pieza. Debido a ello, la velocidad angular que tomaremos en consideración para el cálculo de la fuerza de sujeción inicial será las más alta empleada durante la operación de desbaste exterior; es decir: ésa que tiene lugar a la hora de dar forma al diámetro más reducido, con una profundidad de corte máxima y un tiempo de desbaste relativamente altos –suponiendo una programación para velocidad de corte constante–. Esto último debido a que no tiene mucho sentido tomar en cuenta un valor de velocidad angular que, aunque sea el más alto, solo se utiliza un par de segundos de acuerdo con la demanda geométrica de la pieza.

Por ahora no nos interesa saber si la herramienta de corte utilizada es la más efectiva para el trabajo o no; de ella solo nos importa la velocidad de corte recomendada, que según su ficha[14] es:

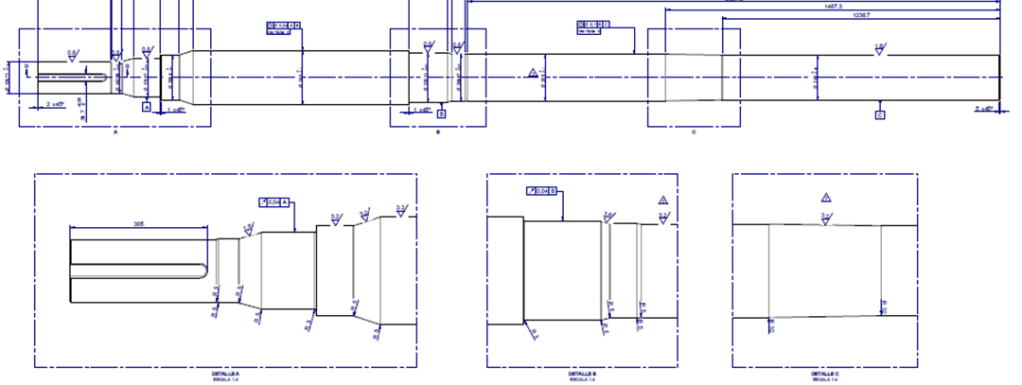
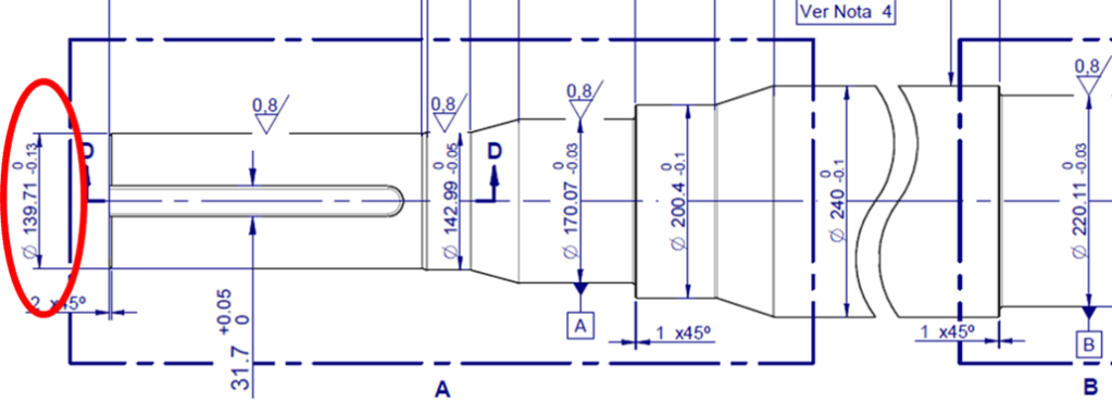
Para definir el diámetro que utilizaremos para determinar las rpm, es necesario observar el plano de la pieza a fabricar:

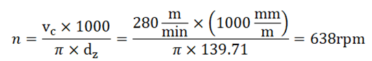
La mayor velocidad angular a la que girará el plato en tanto soporta la máxima fuerza de corte principal producida durante el trabajo, tendrá lugar cuando se esté dando la última pasada de desbaste al diámetro menor de la pieza final, que es, como se observa en el plano, ése ubicado en el extremo izquierdo de la pieza. De esta manera, nuestro diámetro a considerar será de: 139.71 mm.

Luego, las rpm que vamos a considerar, siguiendo la ecuación 10:

Ya con la velocidad angular definida, podemos empezar a calcular las variables que nos permitirán encontrar la fuerza de sujeción requerida con el plato estacionario, según la fórmula 2. La primera de ella es la fuerza de corte principal, que, según la ecuación 3, es el producto del avance, la profundidad de corte y la fuerza de corte específica. Estos valores podemos obtenerlos de las tablas 1 y 2 respectivamente, claro que en el caso del avance y la profundidad de corte, usaremos valores a partir de las indicaciones del fabricante de la plaquita utilizada. De esta manera, nuestro avance será de 0.65 y nuestra profundidad de corte de: 12 mm.
Para la fuerza de corte específica, lo primero que debemos tener en cuenta es el material de la pieza, que según el plano de MOSI, es un acero SAE 4140.

La norma utilizada en la tabla 2 para definir el tipo de acero a mecanizar, es la UNE-EN 10083, empleada en Europa; de ahí que no se asome ni por casualidad la nomenclatura 4140, correspondiente a la norma SAE, utilizada en Estados Unidos. Ahora, la equivalencia del acero SAE4140 en la norma europea UNE-EN 10083 es el acero 42CrMo4.

Luego, haciendo uso de una interpolación lineal, el valor de la fuerza de corte específica k_z será: 3.08 kN/mm^2

La fuerza de corte principal:

Para la relación d_z / d_sp, consideraremos que la pieza es sostenida por el extremo derecho –según el plano antes expuesto–, y que el diámetro en el tramo donde es sostenida es igual al diámetro de la pieza en bruto, que a su vez será un tanto mayor al diámetro máximo de la pieza terminada, que, como vimos en la imagen anterior, es igual a 240mm.

El coeficiente de sujeción μsp, según la tabla 4, será 0.15, considerando que el acabado de la pieza en el tramo donde es sostenida tiene un buen acabado, y que la superficie de las mordazas en la sección de agarre es dentada. Téngase en cuenta que se emplean para este trabajo mordazas duras.

El factor de seguridad F_z, por su parte, lo tomaremos como 4.0, considerando tanto la relación entre la distancia desde el mecanizado al punto de sujeción por las mordazas y el diámetro de la sección donde éstas actúan, como el hecho de que la pieza es sostenida sobre una luneta cuando es trabajada.

La fuerza de apriete requerida con el plato estacionario, finalmente:

Para determinar la fuerza de sujeción inicial, en este punto, debemos definir la fuerza centrífuga F_c, cosa que haremos, primero, utilizando la ecuación 5, y después, con las gráficas del fabricante de platos para los tornos CNC de MOSI. Véase en este punto que, debido al producto m_b x r_s para el cálculo de la fuerza centrífuga, debemos realizar a priori la elección de un plato hidráulico, cosa que haremos a partir del valor de la fuerza de apriete requerida con el plato estacionario, pero que probablemente nos inducirá a un análisis de ensayo y error, dada la posibilidad de que el plato que elijamos para hacer el cálculo de la fuerza centrífuga no sea capaz de brindarnos más tarde la fuerza de sujeción inicial.
El fabricante de los platos de MOSI es el asiático SAMCHULLY, y dado el valor de la fuerza de sujeción con el plato estacionario calculada, seleccionaremos inicialmente el mismo plato que esta empresa adquirió, modelo HCH-18, y que posee una máxima fuerza de sujeción con plato estacionario igual a 180 kN.

Este plato, como bien se puede ver en el cuadro anterior, utiliza las mordazas duras HB15A1, cuyo peso, medido de forma empírica, es de 3.9 kg aproximadamente. Luego, el radio del centro de gravedad (que es la distancia desde el centro de gravedad de las mordazas al eje de simetría del torno), de acuerdo con el diámetro de la pieza a fabricar, es: 0.152 m. De esta manera, el producto m_b x r_s es:


La fuerza centrífuga, entonces:

Este valor de fuerza centrífuga luce muy similar al obtenido de la gráfica dada por SAMCHULLY para el plato en cuestión, en la que se observa claramente que con velocidades menores a las 500 rpm, la pérdida de fuerza de sujeción es bastante menor:

Ahora, la fuerza de sujeción inicial, considerando que el agarre de las mordazas es externo:

El hecho de que la fuerza de sujeción inicial sea mayor a la máxima fuerza de sujeción del plato HCH-18 da cuenta de inmediato de que este plato no es el correcto para la operación de mecanizado a ejecutar. Por lo tanto, pasaremos al modelo siguiente, al HCH-21, que tiene una fuerza de sujeción máxima de 234 kN.

Para este plato el peso y el tamaño de las mordazas aumenta, por lo que el producto m_b x r_s varía respecto al anterior:

De modo que los valores de fuerza centrífuga y fuerza de sujeción inicial:

Podemos corroborar este valor de fuerza centrífuga utilizando la gráfica de pérdida de fuerza de sujeción para el plato HCH-21

Suponiendo que cumple con las condiciones dimensionales de la pieza a mecanizar –que la pasada de husillo es la adecuada para ésta, por poner un ejemplo–, este plato sería el idóneo para MOSI en cuanto a la fuerza de sujeción necesaria para el eje antes expuesto.
Reduciendo el tiempo de mecanizado
Nótese que, aunque el plato HCH-21 es capaz de brindar la fuerza de sujeción inicial requerida por MOSI, aún queda un margen hasta su máxima fuerza de sujeción, que bien permitiría incrementar el valor de aquellas variables que inciden de forma directa en el tiempo de fabricación, como la velocidad angular o la velocidad de corte, con el obvio propósito de reducir éste y los costos que ello implica. Claro, siempre y cuando no se superen otras restricciones como las de las herramientas de corte a emplear.

Diría que puede hablarse en este punto de una mejora del proceso global de fabricación a partir de la máxima fuerza de sujeción que el plato seleccionado es capaz de ofrecer. Cosa que, por otro lado, tal vez haga pensar que la mejor elección del plato se reduce entonces a aquél que provea la mayor fuerza de sujeción posible, independiente de la fuerza de sujeción inicial requerida. Parecería lógico, pero habría que tener en cuenta otras restricciones al proceso sobre las que el plato incide, como la carga admisible del rodamiento del husillo; el aumento de la fuerza centrífuga debido al incremento del peso y las dimensiones de las mordazas; y la velocidad angular máxima para el plato, que mientras más grande y pesado éste sea, más limitada estará. Otra no menos importantes podría ser: los costos del plato en sí mismo y de su instalación, que puede que sean bastante más grandes que el ahorro por la aceleración del tiempo de fabricación que dicho plato es capaz de ofrecer, lo que haría necesaria la elección de un plato de menor capacidad, que ofrezca respecto al plato de máxima capacidad, una diferencia de costo y de instalación mucho mayor a la diferencia de ahorro en el tiempo de mecanizado que ambos ofrecen, de forma tal que el plato más chico termine significando un menor gasto global.
Para no ahondar demasiado en especulaciones, lo que hay que tener en cuenta aquí es que la fuerza de sujeción máxima que un plato –que es el adecuado para nuestro proceso de fabricación según los cálculos antes vistos– entrega puede servirnos para, en una suerte de análisis regresivo, mejorar todo el proceso modificando dentro de rangos admisibles algunas de sus variables. Incluso podría guiarnos a la elección de herramientas de corte que ofrezcan profundidades de corte y avances más altos, teniendo en cuenta que éstos son los más idóneos para aprovechar la máxima fuerza de sujeción del plato elegido –y subiendo a la balanza, claro, el probable aumento de costo que una plaquita de mayor calidad va a traer consigo–.
Vemos que el plato HCH-21 tiene una fuerza máxima de sujeción de 234 kN y soporta una velocidad angular de hasta 1700 rpm. A partir de estos datos modificaremos otros del proceso que nos ayudarán a acelerar éste. Para empezar, consideraremos una velocidad de corte de 280 m/min. En este caso estaríamos hablando de una herramienta de corte hipotética –a definir por parte del interesado–, pues el máximo valor de velocidad de corte para la que emplea MOSI, según su fabricante, no debe ser superior a 210 m/min, que para el propósito de este apartado, resulta aún muy baja. Nuestra nueva velocidad angular será entonces de:

Ahora consideraremos un avance de 1.2 mm y una profundidad de corte de 12 mm. Esto último, según la tabla 2, hará que nuestra fuerza de corte específica sea de 2.4 kN / mm^2. La nueva fuerza de corte, por lo tanto, será:

La fuerza de apriete requerida con el plato estacionario, será entonces de:

Claramente esta fuerza de sujeción es excesiva, de hecho, no conozco ningún plato hidráulico capaz de proveerla. La importancia de llegar a este resultado radica en mostrar lo iterativo del análisis del proceso de fabricación a partir de la fuerza de sujeción necesaria y aquella máxima que nuestro plato adecuado puede entregar –aunque bien podría decirse lo mismo del proceso de fabricación en general–. En este caso, teniendo en cuenta la pérdida de fuerza de agarre en el rango entre 600 y 700 rpm que, de acuerdo con la gráfica de la imagen 14, sufre el plato HCH-21, para que la fuerza de apriete requerida con el plato estacionario no llegue a valores imposibles o inadmisibles, la fuerza de corte principal debe ser aproximadamente de: 16 kN. Así, podemos considerar un avance de 0.8mm y una profundidad de corte de 7.5mm. Nuestra fuerza de corte específica será entonces de: 2.72 kN/mm^2. De esta forma, la fuerza de corte principal es:

Y la fuerza de sujeción con el plato estacionario:

La fuerza centrífuga, considerando que la velocidad angular es ahora de 638 rpm:

Luego, la fuerza de sujeción inicial:

Un resultado que excede la fuerza de sujeción máxima de la que disponemos, y que nos obliga a bajar un poco más, ya la velocidad angular, ya la profundidad de corte o el avance. La decisión sobre con cuál variable jugar dependerá del analista del proceso; podemos decir, sin embargo, que la menos influyente en la fuerza de sujeción inicial es la velocidad de corte. Un resultado viable, para nuestro caso de análisis teórico, se obtiene con una velocidad de corte de 250 m/min, una profundidad de corte de: 6mm y un avance de 0.7mm (que da una fuerza de corte específica de: 2.82 kN/mm^2). Con estos valores, los cálculos quedan de la siguiente forma:

Un resultado que, puede decirse, permite sacar el máximo provecho al plato HCH-21.
Determinación de la presión del sistema
Una vez definida la fuerza que debe entregarnos el plato seleccionado, es hora de conocer la presión en el sistema que nos permitirá alcanzar dicha fuerza, para, a continuación, seleccionar el cilindro hidráulico capaz de generar tal presión.
De acuerdo con la ecuación 6 y los datos expuestos en la tabla 11 para el plato HCH-21, la fuerza que debe recibir éste de parte del cilindro para entregarnos los 232.85 kN que queremos, será:

Este dato corresponde, para nuestro caso de agarre de pieza exterior, a la fuerza máxima del cilindro en tracción, por lo que constituye la información que nos permitirá definir qué cilindro tenemos que comprar. Dado que el proveedor de MOSI es SAMCHULLY, seleccionaremos el modelo de cilindro de la oferta de este proveedor. Así, el primero que se ajusta a nuestra necesidad es el modelo SD-21510.

La presión en el sistema que debemos ajustar para el trabajo, finalmente, es:

En resumen, y según el análisis hecho hasta este punto, el plato y el cilindro hidráulicos adecuados para el proceso de fabricación de MOSI antes visto, que le permitían realizar éste de forma eficiente e incurriendo en el menor costo posible, serían unos equivalentes a los modelos HCH-21 y SD-21510 de SAMCHULLY.
Bibliografía
BILTRA. Tabla de equivalencias de aceros. https://www.biltra.com/wp-content/uploads/2018/09/TABLA-DE-ACEROS-BILTRA.pdf
Röhm. Power-operated clamping devices; General information and guidelines.
SAMCHULLY. Samchully Machinery General Catalog Vol.9.
SCHUNK. Power Lathe Chuck ROTA NCE; Assembly and Operating Manual (Mengen), p. 23.
SANDVIK. Fórmulas y definiciones en torneado general. https://www.sandvik.coromant.com/es-es/knowledge/machining-formulas-definitions/pages/general-turning.aspx
[1] All CNC. Gripping Systems, Clamping Systems, Tool Holders, Chucks and Clamping Diagnostics. https://www.allcncs.com/Spare_Parts_Accessories/Schunk.html
[2] Kitagawa. Drawtubes and Drawbars. https://www.kitagawa.global/en/products/power-chucks/accessories/drawtubes-and-drawbars
[3] SAMCHULLY. Hydrualic Chuck. https://www.youtube.com/watch?v=c7LtyXOjOSY
[4] Haas Automation, Inc. How to Properly Cut Lathe Soft Jaws — Part 2: ID Gripping, Re-cutting, and Adding a Taper. https://www.youtube.com/watch?v=-AyMQNoaBjc
[5] Röhm. Power-operated clamping devices; General information and guidelines (p. 6225).
[6] Ibídem, (p. 6226).
[7] Ibídem, (p. 6227).
[8] Ídem.
[9] Ídem.
[10] Ibídem, (p. 6228).
[11] SCHUNK. Power Lathe Chuck ROTA NCE; Assembly and Operating Manual (Mengen), p. 23.
[12] Wirebiters. Design for Manufacturing: Turning Small Parts. https://www.wirebiters.com/design-for-manufacturing-turning-small-parts/
[13] ISCAR. CNMG 190608-NR. https://www.iscar.com/eCatalog/item.aspx?cat=5508001&fnum=897&mapp=IS&app=0&GFSTYP=M&isoD=1
[14]Tools United. CNMG 190608-NR IC8250. https://www.toolsunited.com/App/ESP/Article/ArticleDetailsPage/24696400131007388
[15] BILTRA. Tabla de equivalencias de aceros. https://www.biltra.com/wp-content/uploads/2018/09/TABLA-DE-ACEROS-BILTRA.pdf
[16] SAMCHULLY. Samchully Machinery General Catalog Vol.9, p. 70.
[17] op cit(11), p. 18.
[18] op cit(16).
[19] Ibídem, p. 72.
[20] Ídem.
[21] Small Tools Inc. Samchully 21″ 3 Jaw Open Center Power Chuck Plain Back Mount HCH-21. https://www.smalltools.com/samchully-21-3-jaw-open-center-hydraulic-power-chuck-plain-back-spindle-mount-hch-21/
[22] op cit(16), p. 104.
